76 Viviendas en Alquiler Protegido
La Pinaeta, Puerto de Sagunto
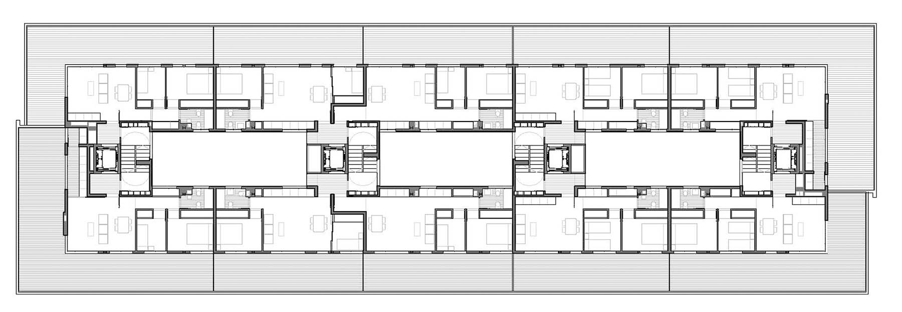
Situados en un área de nueva promovida por el ivvsa. los condicionantes son, una vía de trafico intenso al este, un jardín al oeste, y una parcela rectangular con fuerte desnivel. las viviendas en P.Baja pasantes se aproximan jardín con una terraza cubierta que les confiere privacidad y proximidad, al otro lado situamos los dormitorios ligeramente elevados para garantizar su privacidad.
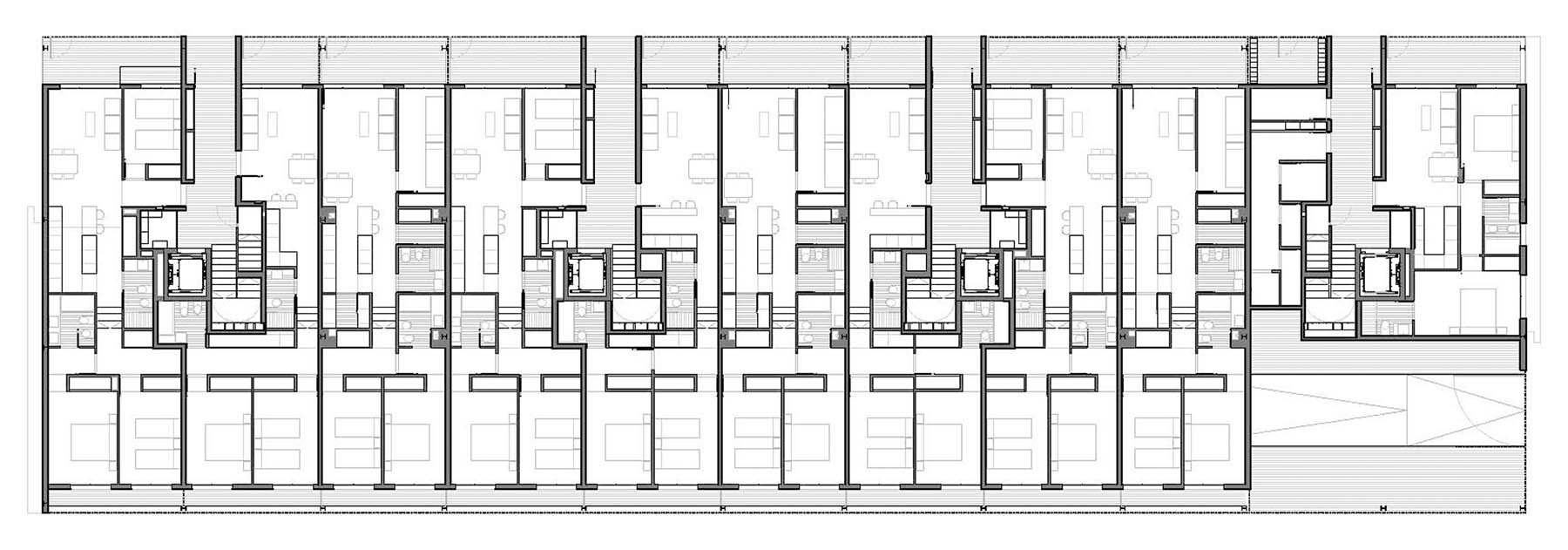
Las plantas superiores se organizan mediante 2 L de sección alternada a medias plantas y un patio central donde aparecen los 4 núcleos de comunicación. Lamas de aluminio y prefabricados de hormigón nos ofrecerán la imagen del edificio.
AUTORES
Juan Ignacio Fuster, Miguel del Rey
COLABORADORES
Enrique Llinares, arquitecto técnico
CONSTRUCTORA
Secopsa SA
PROMOTOR
Grupo valenciano de alquiler protegido
Publicaciones
En Blanco
VPOR2 Revista de Vivienda